Sonnige Ferienwohnung Norderney - kinderfreundlich
Ferienwohnung Schuppen XVI
Norderney
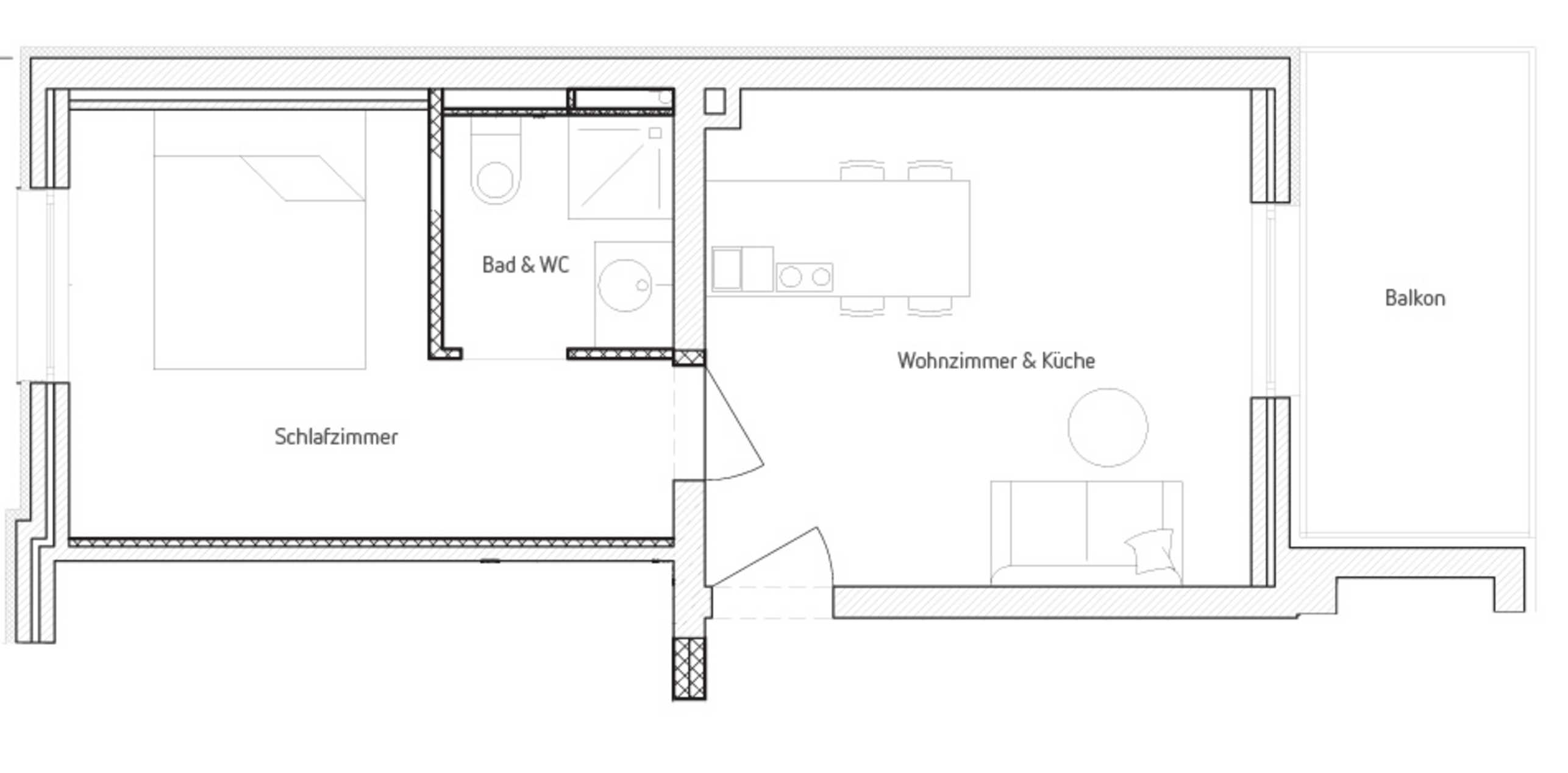
Die Ferienwohnung Schuppen XVI ist besonders für Paare oder Familien mit Kindern geeignet. Das Schlafzimmer, ein Bad mit Dusche und der Wohnbereich mit offener, kleiner aber gut ausgestatteter Küche sind sehr schön aufgeteilt. Auf dem Balkon kann man ab Mittags bis in den Abend hinein die Sonne genießen.
Die Ferienwohnung
- Anzahl der Zimmer:
- 2
- Max. belegung:
- 2 Erwachsene, 2 Kinder
- Wohnfläsche:
- ca. 34 qm Wohnfläche
- Etage:
- 2.OG.
- Zimmeraufteilung:
- Wohn-/Essraum, Schlafcouch (2 Kinder), Küchenblock mit Bartisch, Schlafzimmer mit 160 cm Doppelbett. Bad: Dusche (vollverglast), Waschbecken, WC. Balkon Richtung Südwesten.
Ausstattung
- kostenloses WLAN
- Smart TV
- Mikrowelle
- Toaster
- Wasserkocher
- Fön
- Waschmaschine & -Trockner im Haus
- Sicherer Innenhof
Extras
- Haustiere:
- keine
- Bettwäsche:
- inklusive
- Handtücher:
- inklusive
- Kinderhochstuhl:
- bitte vorbestellen
- Kinderbett:
- bitte vorbestellen
- Stellplatz vorhanden:
- Nein
Verfügbarkeit
- In der Regel Buchungen von mindestens 7 Tage in der Hauptsaison
- In der Zwischen- und Nebensaison Buchungen mit kürzerem Aufenthalt bei beliebiger Anreise möglich (siehe Preistabelle)
- Kürzere Aufenthalte & Sonderregelungen gern auf Anfrage
Besonderes
- 1 Babybett zustellbar.
- Preise inkl. gesetzlicher MwSt. und zzgl. Nebenkosten (Endreinigung, Schlüsselübergabe, Service vor Ort, Hausnebenkosten), Bettwäsche und Handtücher (15,- € pro Person).
Das Rauchen ist in allen Apartments sowie auf Terrassen & Balkons untersagt.
Zeiten & Preise
Nebensaison
2025
5 Nächte, 3/4 Nächte zzgl. Endreinigung möglich
Zeiten
06.01 - 31.01.
04.02. - 27.02.
05.03. - 05.04.
02.11. - 20.12.
Zwischensaison
2025
7 Nächte, 5 Nächte in Ausnahmefällen möglich
Zeiten
31.01. - 04.02.
27.02. - 05.03.
05.04. - 28.05.
02.06. - 06.06.
11.06. - 18.06.
22.06. - 28.06.
31.08. - 02.11.
Hauptsaison
2025
min.7 Nächte
Zeiten
01.01. - 06.01.
28.05. - 02.06.
06.06. - 11.06.
18.06. - 22.06.
28.06. - 31.08.
20.12. - 06.01.
Hauptsaison
2026
min. 7 Nächte
Zeiten
01.01. – 09.01.
01.05. – 03.05.
13.05. – 18.05.
21.05. – 27.05.
03.06. – 07.06.
01.07. – 01.09.
22.12. – 09.01.2027
Zwischensaison
2026
7 Nächte, 5 Nächte in Ausnahmefällen möglich
Zeiten
13.02. - 17.02.
28.02. – 15.03.
28.03. – 01.05.
03.05. – 13.05.
18.05. – 21.05.
27.05. – 03.06.
07.06. – 01.07.
01.09. – 31.10.
Nebensaison
2026
3 Nächte
Zeiten
09.01. – 13.02.
17.02. - 28.02.
15.03. – 28.03.
01.11. – 22.12.
Grundriss

































